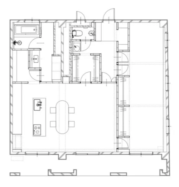
建物の重厚感を活かした内装に、白でまとめた爽やかな印象をつくる住まい。アイランドキッチンや檜の浴室など、素材選びから動線計画まで建築家のこだわりが行き届いています。京橋川沿いの立地で、自然な風が吹き抜ける心地よい空気感。各居室がバルコニーに面し、WICは廊下とLDKの両方からアクセス可能。建築家が丁寧に創り上げた、風と光が心地よく行き交う住空間。上質な日常を求める方へ!!!







お電話(10:00~19:00)またはフォームでお気軽にお問い合わせください
お電話でのお問い合わせの際は「物件番号:A1-159」をお伝えいただけますとスムーズにご案内することができます